House 197

House 197

CATEGORY: Panel houses

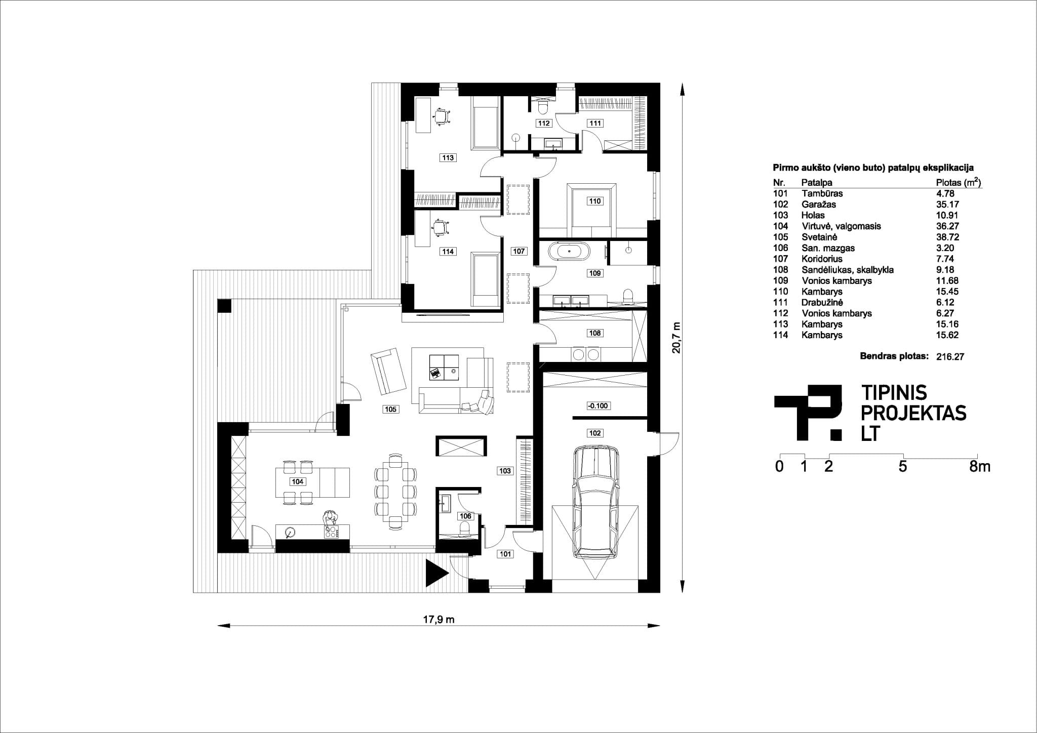
Single-storey residential house with a garage

  • Gross area: 216.27 m²
  • Building footprint: 265.00 m²
  • Living area: 121.22 m²
  • Type: Single-family
  • Roof: Flat
  • Number of rooms: 4
  • Number of bathrooms: 3
  • Garage: for 1 car
  • Utility room: Yes
  • Laundry room: Yes
  • Number of walk-in closets: 1
  • Storage room: Yes

This project can be adjusted to suit your needs.

The construction period of the house is 3-4 months

Contact us to discuss your project

Contact us

All rights belong to: UAB „Tipinis projektas”, you can find more of their projects on the website www.tipinisprojektas.lt