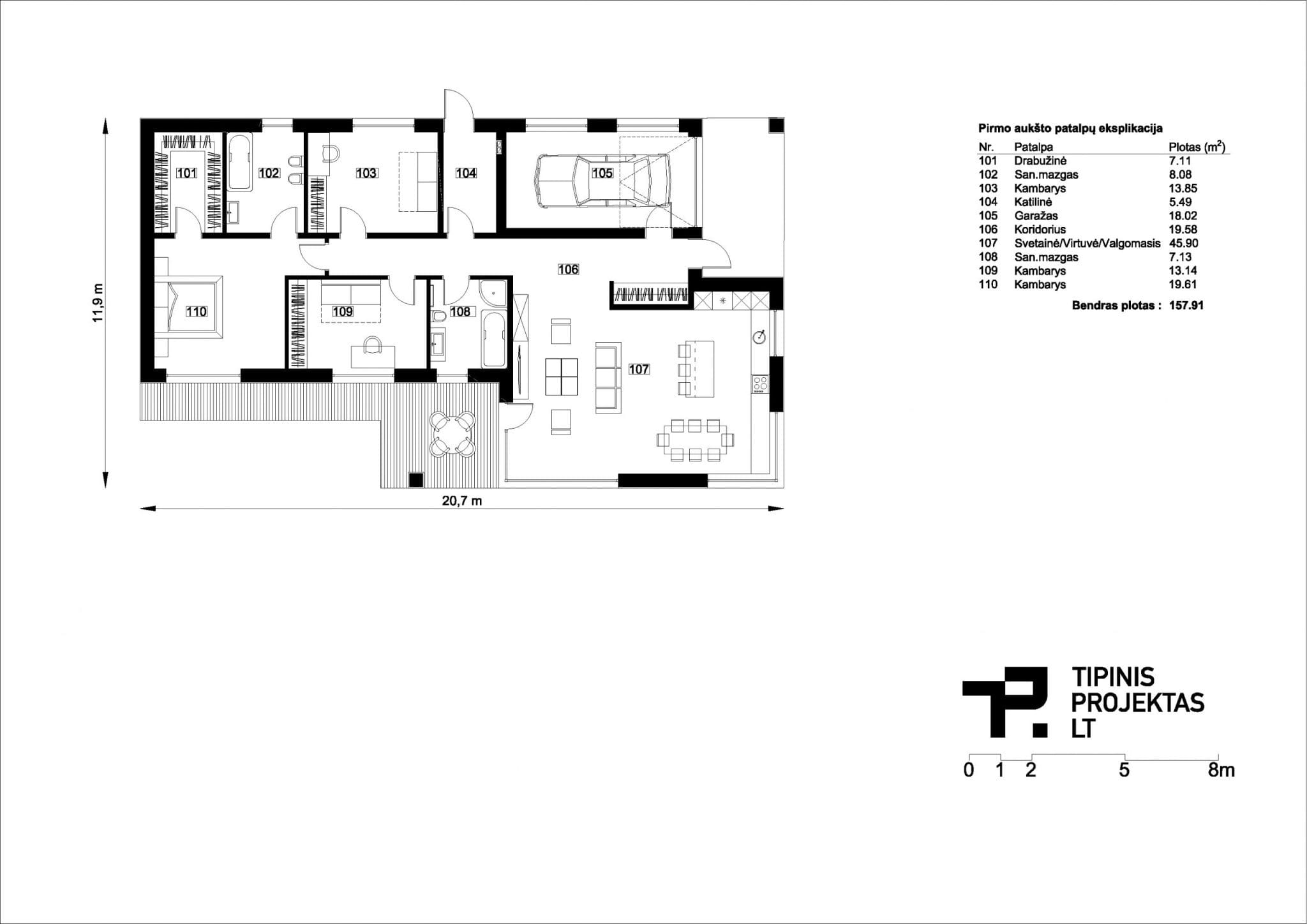
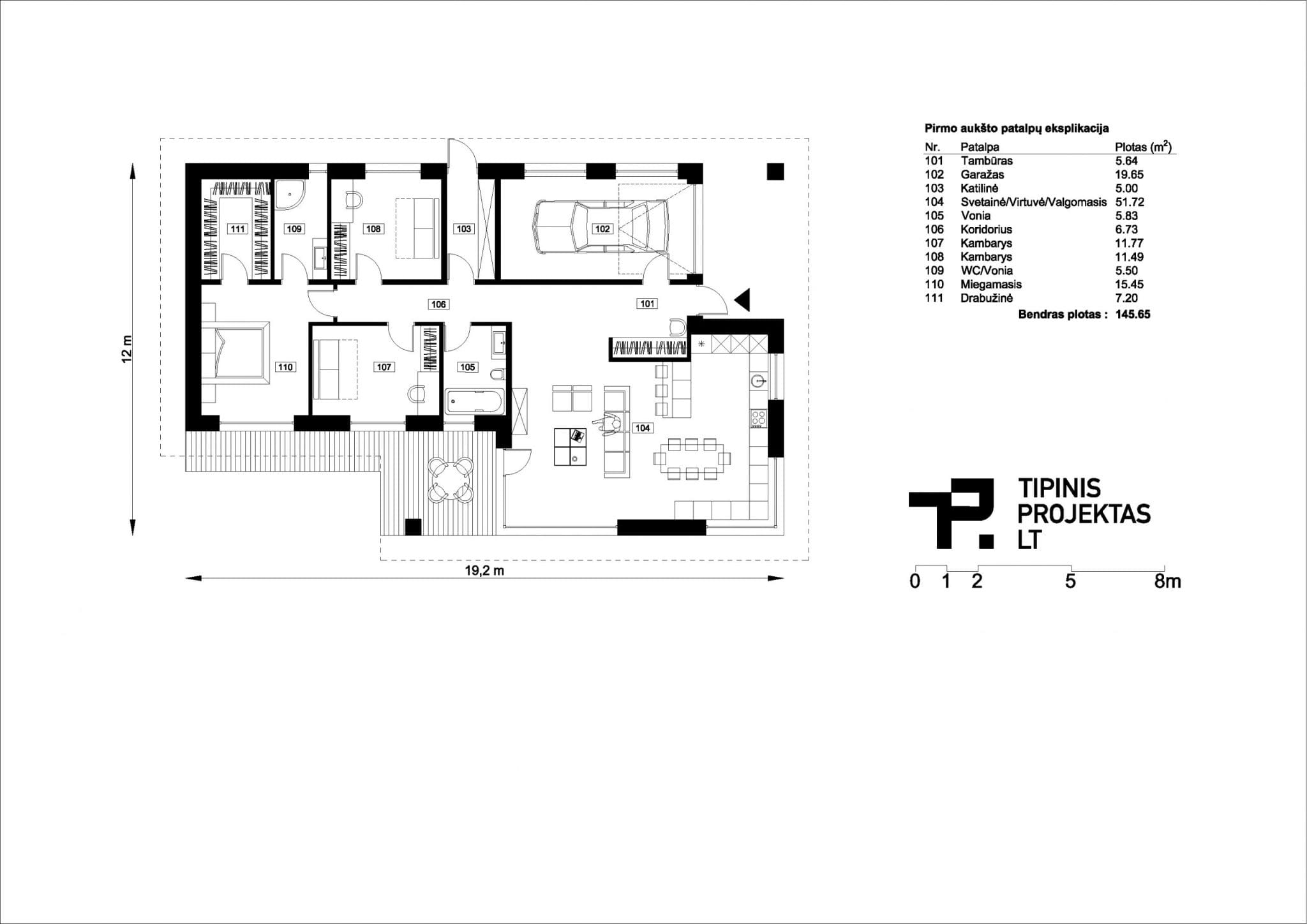
Vieno aukšto gyvenamasis namas su garažu
- Bendras plotas: 157.91 m² (145.65 m² 119a)
- Užstatymo plotas: 193.82 m² (186.56 m² 119a)
- Gyvenamasis plotas: 92.50 m² (90.43 m² 119a)
- Tipas: Vienbutis
- Stogas: Šlaitinis
- Kambarių skaičius: 4
- San. mazgų skaičius: 2
- Garažas: Vienam automobiliui
- Techninė patalpa: Yra
Šis projektas gali būti koreguojamas pagal Jūsų poreikius







